扫一扫浏览分享
- 区域方位:
- 城东区
- 小区地段:
- 九如城
- 房屋类型:
- 多层
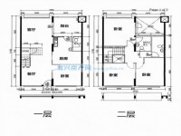
- 户型结构:
- 3室3厅2卫
- 所在楼层:
- 1 楼
- 装修程度:
- 毛坯未装
- 楼层总数:
- 4 层
- 建筑面积:
- 140.00㎡
- 车库情况:
- 14
- 契证年数:
- 未满两年
- 小学学区:
- 中学学区:
- 房屋朝向:
- 朝南
- 土地性质:
- 国有出让
- 建成年份:
- 2019
- 每平单价:
- 19642元/㎡
- 证件情况:
- 证件齐全
- 交易价格:
- 275.00万 房贷计算器
- 配套设施:
- 备注说明:
- 房子 采光特别好 前面无遮挡 视野非常不错
- 联系方式 ▽
-
- 友情提示:
- 来电咨询时请告知本信息来自宜兴房产网,以获得更多帮助与信任。
- 联 系 人:
- 京京王
- 手机号码:
- 13815134349
- 微 信 号:
- 13815134349
- 电话/短号:
- 61813
- 企业名称:
- 宜安居房产
- 企业地址:
- 宜兴阳光花苑
- 房源照片 ▽




- 所在位置 ▽
- 京京王
(宜安居房产) - 13815134349 61813




免责声明:本站所刊载的所有的房源信息、活动信息、资料及图片均由网站用户提供,其真实性、合法性由信息发布人负责,本网站不声明或保证其内容之正确性或可靠性。所有信息请与经纪公司、房产公司、家装公司、业主个人等确认为准!